アイランドキッチンの間取り作りのポイント3つとレイアウト実例6選

新築やリノベーションでアイランドキッチンにしようとする時、考えている間取りで大丈夫なのか悩みますね。
|
など、考えれば考えるほど頭の中が堂々巡りしてしまうかもしれません。アイランドキッチンの間取りを決める時のルールや規格があれば知りたいですよね。
間取りを決める際には、間取りの広さとアイランドキッチンのサイズ、動線、レイアウトなどのポイントがあります。そのポイントさえ押さえておけば、ちょうどいい間取りを作れますよ。
この記事では以下のようなことをお伝えします。
・アイランドキッチンの間取りづくりのポイント
・アイランドキッチンの間取りの実例
・アイランドキッチンの間取りを作る上での注意点
アイランドキッチンの間取りを作る上での注意点もまとめました。アイランドキッチンの間取り作りで後悔しないためにも、ぜひ最後までお読みくださいね。
資料ダウンロード(無料)
住宅ローンに縛られず、趣味や旅行だって楽しみたい。自分のライフスタイルに合った間取りで豊かに、自由に暮らしたい。
そんな「大人を自由にする住まい」を叶えるためのヒントをまとめた資料集です。ぜひお役立てください。

家探し、家づくりに役立つ4つのガイドブック
- 余白ある住まいの買い方・つくり方
- はじめての中古購入+リノベ完全ガイド
- 失敗しない中古マンション 購入前のチェックリスト80
- グリーンをもっと楽しむ!インテリアのアイデアブック
住宅ローンに縛られない「安心予算」の考え方から中古リノベの進め方、中古マンション選びのポイントまで目的別に3種類の資料をデジタルガイドブックでご用意。いずれも無料でダウンロードできます。
\セールスも一切なし/
アイランドキッチンの間取り作りのポイント3つ
アイランドキッチンの間取り作りで重要なのは、以下の3つのポイントです。
|
それぞれについて、1つずつ詳しく説明していきますね。
1-1.アイランドキッチンのサイズと周辺のスペースを考える
アイランドキッチンを設置するには、アイランドキッチン自体のサイズだけでなく、その周辺に必要なスペースも考える必要があります。
1-1-1. アイランドキッチン自体のサイズを把握する
アイランドキッチンの大きさは、一般的に間口180〜300cm、奥行き75〜100cm程度です。
コンパクトなアイランドキッチンは180cm✕75cm程度からあり、大きなものでは300cm✕100cm以上まであります。
1-1-2.アイランドキッチン周辺に必要なスペースを把握する
次に、アイランドキッチン周辺のスペース、つまり通路はどのくらいになるかを考えます。通常の壁についているキッチンならほとんど背後だけを考えればいいですが、アイランドキッチンはそのまわりをぐるりと移動しますね。つまり、4包囲すべてにスペースが必要ということになります。
アイランドキッチン周りのスペースは、人がすれ違うことや前面の水はねなどを考慮すると、最低でも80〜90cm必要です。
アイランドキッチンと周囲の必要面積を畳に換算すると、6帖程度です。ということは、アイランドキッチンを置くには最低でも6帖のスペースが必要になるということです。
その外に冷蔵庫や食器棚、ダイニングテーブル分の面積がプラスされると考えると、約8〜10帖は必要になる場合もあるので、間取りを決める際には注意しましょう。
1-2.動線はワークトライアングルを意識する
次に考えておきたいのが動線です。アイランドキッチンを使う際には、動線が使い勝手に大きく影響します。
キッチンには、ワーキングトライアングルという考え方があります。ワーキングトライアングルとは、シンク・コンロ・冷蔵庫を結んだ三角形のことです。この三角形の3辺の合計が3.6〜6m内で、かつ正三角形に近いほど作業しやすいと考えられています。
スタンダードなⅠ型のアイランドキッチンの場合は、シンクとコンロが平行に並んでいるので、冷蔵庫はアイランドキッチンの真後ろにあるのが理想です。ただし、それでは隣の食器棚や配置的なバランスが取れないことも考えられますね。

一般的には、冷蔵庫はシンク側かコンロ側どちらかに寄せる形になり、直角三角形になることが多いです。冷蔵庫の扉が左右どちらに開くかも重要ですね。
セパレートやL型のアイランドキッチンの場合も基本的な考え方は同じで、シンク・コンロ・冷蔵庫を結んだ線になります。
特にセパレートのアイランドキッチンはシンクとコンロが向かい合っていたり、L型のアイランドキッチンはシンクとコンロが45度に向き合っていたりするので、ワーキングトライアングルが作りやすい形でもあります。
1-3.部屋のレイアウトはスペースとのバランスを考える
アイランドキッチンを置く部屋のレイアウトも重要ですね。アイランドキッチンを置くLDKは、「L字型ソファのセットを置いて家族のくつろぎのスペースを作りたい」「大きなダイニングテーブルを置きたい」など、希望する家具もあるでしょう。
しかし、まずはアイランドキッチンと部屋全体のバランスから考えます。前述したとおり、アイランドキッチンを置くには最低でも約6帖分が必要なので、リビングの中のくつろぎのスペースは、”LDKの広さから6帖を引いた広さ”となります。

LDKが16帖の場合は16帖から6帖を引いた帖10帖が、LDKが20帖の場合は20帖から6帖を引いた14帖が自由に使えるリビングスペースになります。
このように、リビングにどのくらいの広さが使えるかを割り出し、簡単な間取り図を紙に書いてみると、家具の向きやアイランドキッチンとのバランスなどがイメージしやすくなりますよ。
ただ、リビングの形は、正方形、長方形、変則的な形と様々ですよね。
「アイランドキッチンが入った間取りづくりのポイントは分かったけど、うちの場合はどうしたらいいの?」
という方のために、次章では実際のレイアウトの例をいくつかご紹介します。
【弊社事例】アイランドキッチンの間取りおすすめ6選
ここでは実際に弊社で手掛けた、アイランドキッチンのあるLDKの間取りをいくつかご紹介します。弊社は主にマンションのリノベーションを取り扱っているため、マンション物件の実例になることをご了承ください。
1.リビング全体が見渡せるアイランドキッチン

洋室×2・和室・リビング・キッチンの3LDKの構成を、リノベーションでは洋室・和室の壁を取り払い、リビングを約22帖の巨大空間に。
リノベ前のキッチンは独立した個室でしたが、リノベ後はアイランドキッチンをリビング中央に設置。
明るい陽光に包まれたキッチンは作業台もゆったり。使いやすくなったことで、料理をする機会がぐんと増えたそうです。
ゼロリノベのリノベーション施工事例
2面のバルコニーに接する広々リビングは開放感を味わいながら、近い将来予想されるお母様との同居を見越して間取りにひと工夫。造作棚を移動させることで広いリビングはそのままに、ゆるやかな間仕切りで風と光が抜ける居心地のよい個室を追加することができます。
※費用は引き渡し当時の金額です
2.キッチンが主役のアイランドキッチン

元の間取りでは、20帖のLDKに窓向きのペニンシュラキッチンがあり、眺望は良いものの家族とは直角でやや孤立感がありました。
リノベ後はリビング向きのアイランドキッチンに変更し、LDKの中心で家族と対面できる配置に。
背面には食器棚を設け、壁から90cm以上の距離を確保したことで、調理中も後ろを家族が通れてストレスなく作業できるようになりました。
ゼロリノベのリノベーション施工事例
大きくて真っ白なアイランドキッチンがあるLDKで家族団らん。一角には箱を意識した小上がりの寝室があり、回遊動線でリビングからも書斎からもアクセスできます。回遊動線はキッチン、パントリー、水回りも。ストレスフリーで暮らせる、家族のためのリノベーション。
※費用は引き渡し当時の金額です
3.細長リビングのアイランドキッチン

細長いLDKでも、アイランドキッチンを部屋に沿うよう横向きに置けば、広々とした作業スペースを確保できます。
この事例では、キッチン横にリビング、背面に冷蔵庫と食器棚を配置し、動線も良好。仕切り壁を取り払ったことで奥まった位置でも明るさを確保しています。
前面を無垢材の床と合わせ、空間に統一感を持たせた点も、心地よいリビングづくりのポイントです。
ゼロリノベのリノベーション施工事例
白い箱の中に無垢材の家具や床を使用した温かみと落ち着きのある、作り込みすぎないことを意識した空間に仕上げました。2つの動線が行き来できる回遊性のあるプランニングは、洗面からWIC、寝室に続く裏動線のある機能性抜群なお住まいです。
※費用は引き渡し当時の金額です
4.回遊性のあるパントリー付きアイランドキッチン

収納不足が悩みだった3LDK・88㎡の住まいを、回遊性のあるアイランドキッチン+パントリー付きにリノベーション。
洋室や納戸、ウォークインクローゼットの壁を取り払い、アイランドキッチン背後にパントリーを配置しました。
リビング中央にキッチン、背面に90cmのゆとりを持たせた収納兼作業スペースを設け、振り向くだけで食器や食材を取り出せる効率的な動線に。
キッチン自体はコンパクトになったものの、動線と使い勝手の向上で狭さを感じない仕上がりです。
ゼロリノベのリノベーション施工事例
人が集まれる広いリビングダイニングに、隣接する寝室は大きなガラスの引き戸で仕切ることで、より一層開放感が味わえます。ご夫婦はもちろん、大きなワンちゃんものびのびと過ごせるよう、2つの回遊動線を計画しました。
※費用は引き渡し当時の金額です
5.見晴らしの良いセパレート型アイランドキッチン

元はLDK奥の6帖和室だった空間を取り払い、約17帖のリビングに拡張。そこに一段高くして見晴らしを良くしたセパレート型アイランドキッチンを設置しました。
シンクと作業台はアイランド側、コンロは背面壁に独立配置し、動線もスムーズ。
ご夫婦2人暮らしのためコンパクトなキッチンを採用し、こだわりの器具や食器だけを選んで壁面収納に収め、すっきりとした空間を実現しています。
ゼロリノベのリノベーション施工事例
夫婦はアウトドアが好きだけど元来インドア派。それでも家の中にいるだけでは飽きてしまう。そこで、室内外の境界を曖昧にし、移動や視線の抜けを工夫して、各空間を楽しみやすく飽きのこないビュッフェのような空間デザインを目指しました。
※費用は引き渡し当時の金額です
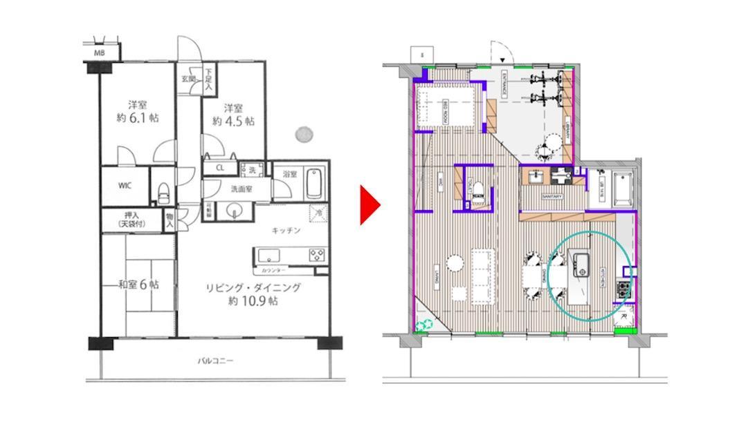
6.使い勝手の良いアイランドキッチン

約70㎡・3LDKの住まいをリノベーションし、和室を撤去してアイランドキッチンを家の中心、玄関近くに配置。買い物帰りにすぐ作業台へ荷物を置き、冷蔵庫や収納棚に直行できる便利な動線を実現しました。
背面に食器棚を設け、振り向くだけで食器を取り出せるため調理効率も向上。キッチンと壁の間には2人が立てるゆとりを確保し、ダイニング・リビング間の移動もスムーズに。
家の真ん中にあることで、暮らしの基本動線が自然にキッチン中心にまとまっています。
ゼロリノベのリノベーション施工事例
ライフスタイルの変化に対応できるよう、シンプルな住まいを希望されたKさまご家族。部屋の中央に配したキッチンを基点にぐるりと回遊できる動線になっており、日々の家事ストレスを解消。家族とコミュニケーションもとりやすく、シンプルであたたかみある住まいになりました。
※費用は引き渡し当時の金額です
アイランドキッチンの間取りを決める上で注意すべきこと
アイランドキッチンがある間取りの色々な実例をご紹介しましたが、アイランドキッチンの間取りを決める上で、忘れてはならない基本的な注意点が3つあります。
|
それぞれについて、詳しくご説明しますね。
3-1.アイランドキッチンの収納は量と位置の視点から考える
収納は、収納量と収納の位置の2つの側面から考える必要があります。
3-1-1. アイランドキッチンの収納量
島として部屋に位置するアイランドキッチンは、吊り棚がないため基本的に収納が少ないですね。
そこで収納を補うために、炊飯器や電子レンジを収納できるカップボードや、食器棚などが必要になります。吊り棚やパントリーをつける場合もありますが、ここでは一般的なカップボードと食器棚に絞ってお話しますね。
こちらは一例ですが、住まう人数とアイランドキッチンのサイズから考えた、補助的な収納の有無です。分かりやすいように、アイランドキッチンをコンパクト、標準、大きいサイズの3つに分けました。
間口180cm前後のコンパクトなアイランドキッチンの場合、アイランドキッチンの中にはほとんど調理器具しか入らないので、炊飯器を置けるスペースのあるカップボードが必要です。1〜2人家族なら食器もカップボードに収まりますが、2〜3人以上になると他にも食器棚が必要になります。
同じ1〜2人家族でも、大きなサイズのアイランドキッチンで、且つ炊飯器をアイランドキッチンにしまうことに抵抗がなければ、カップボードや食器棚は必要ないでしょう。
3-1-2.アイランドキッチンの収納を補う食器棚などの位置
食器棚がアイランドキッチンから離れていると、食器や必要なものを出し入れする度に移動しなければなりませんね。
ちょっと歩くだけなのですが、調理中はこれが意外と手間になります。時間勝負の料理では、1秒も無駄にしたくありませんよね。そのため、アイランドキッチンの収納を補助する食器棚やカップボードは、できるだけ近くに設置するのがおすすめです。
先述したようにワーキングトライアングルを意識すると、食器棚はアイランドキッチンの背後にあるのが理想と言えます。

といっても、あまりに近すぎると今度は人がすれ違うことができません。アイランドキッチンと食器棚の間は80〜90cm程度離れているのがベストです。
3-2.アイランドキッチンにコンセントが足りない場合どうするか決めておく
間取りばかり気になり、つい見落としてしまうのがコンセントの位置です。アイランドキッチンの電源コンセントだけでは足りなくなることが多いのです。中にはコンセントがまったくないアイランドキッチンもあるので要注意。
キッチンでは、意外とキッチン家電を多く使いますよね。

調理中は一度に複数のキッチン家電を使うので、アイランドキッチンに2口程度コンセントがついているものでも意外と足りなくて、後から後悔するというのはよくある話です。
そこで考えておきたいのが、コンセントの増設です。
しかし、アイランドキッチンのコンセント増設は、思ったよりも難しいです。なぜなら、シンクやコンロの近くは、水はねや油はねの危険があるので設置できないからです。
少なくとも、コンセントの位置はシンクやコンロから20cm以上離れた場所に設置するのがおすすめです。水はねからガードするカバーをつけてシンクの横に設置することもありますが、そこは見た目との兼ね合いということになるでしょう。
背面の壁やカップボードが近い場合は、アイランドキッチンの内部にコードを通してアイランドキッチンの側面や前面まで引くという方法もあります。
ただ、床に垂れたコードに足を引っ掛ける危険や、反対にコードが届かず延長コードを使う羽目になる可能性もあるので注意が必要です。
床下に電線を這わせればつまずく危険はなくなりますが、その場合、工事費用がかかります。

既存のコンセントから増設する場合は、分岐費用が15,000〜20,000円程度、分電盤から増設する場合は20,000〜25,000円程度かかります。この他に床に穴を空ける工事や配線を引く費用、コンセント本体費用などが加算され、合計は以下のようになります。
分岐費用 | その他の工事費用 | 総額 | |
既存のコンセントからの増設 | 10,000〜20,000円 | 20,000〜25,000円 | 30,000〜45,000円 |
分電盤からの増設 | 15,000〜30,000円 | 20,000〜25,000円 | 35,000〜5,5000円 |
ただし、キッチンで使う家電はそれぞれのワット数が大きいです(例:電気ケトル 1250w)。それに対して1つのコンセントで使えるワット数は1500wまで。既存のコンセントから増設した場合はひとつのコンセントを分岐して使うので、この点にも注意しましょう。
最近では、PanasonicやLIXILなど、予めコンセントが多めについているアイランドキッチンを販売するメーカーも多くなっています。料理でハンドミキサーなどの家電を多く使うことが分かっている場合は、はじめからコンセントがついているアイランドキッチンを購入するのがおすすめですよ。
3-3.水・油はねを想定してスペースを取る
アイランドキッチンを設置する時は、基本的にはシンクやコンロの前は通路にし、汚れたらすぐに拭き掃除ができるくらいのスペースを確保するのがおすすめです。
なぜなら、作業中の水はねや油はねが必ず出てくるからです。
アイランドキッチンのすぐ近くにダイニングテーブルがあると、テーブルや椅子が汚れてしまう可能性があります。ソファなども同様です。
見た目が気にならなければ、水はねガードや油はねガードを設置してもいいですね。
まとめ
アイランドキッチンの間取りについて、詳しく説明してきました。アイランドキッチンが置かれたLDKのイメージが、だいぶ鮮明になってきたのではないでしょうか。
おさらいすると、アイランドキッチンの間取りづくりのポイントは次の3つです。
|
間取りづくりをするときには、アイランドキッチンのサイズだけでなく、冷蔵庫や食器棚との動線、さらに、リビング内のレイアウトを考慮しましょう。
また、アイランドキッチンの間取りを作る際の注意点は、
|
の3つです。アイランドキッチンの収納の少なさを補うための収納家具や、コンセントの増設、オープンキッチンゆえの汚れなども考えて設置することが重要です。
アイランドキッチンの大きさや形は、家族の人数やリビングの大きさにも左右されます。憧れのメーカーやブランドもあると思いますが、まずはこの記事でご紹介したポイントや注意点を念頭に置いて、アイランドキッチンの間取りを決めるといいでしょう。
あなたの家にピッタリのアイランドキッチンの間取りを作り、理想の暮らしを手に入れてくださいね。
資料ダウンロード(無料)
住宅ローンに縛られず、趣味や旅行だって楽しみたい。自分のライフスタイルに合った間取りで豊かに、自由に暮らしたい。
そんな「大人を自由にする住まい」を叶えるためのヒントをまとめた資料集です。ぜひお役立てください。

家探し、家づくりに役立つ4つのガイドブック
- 余白ある住まいの買い方・つくり方
- はじめての中古購入+リノベ完全ガイド
- 失敗しない中古マンション 購入前のチェックリスト80
- グリーンをもっと楽しむ!インテリアのアイデアブック
住宅ローンに縛られない「安心予算」の考え方から中古リノベの進め方、中古マンション選びのポイントまで目的別に3種類の資料をデジタルガイドブックでご用意。いずれも無料でダウンロードできます。
\セールスも一切なし/
編集後記

回遊動線が魅力のアイランドキッチン。私のリノベーションした自宅は壁付けキッチンですが、キッチンの対面に食器棚を兼ねたカウンターを造作してもらいました。カウンターを中心とした回遊動線は本当に快適なので、アイランドキッチンにも憧れがあります(笑)



我が家のリノベでは、換気扇の取り付け位置が要因でアイランドを泣く泣く諦めることに…。結果的にはキッチンパネルがつくことで油ハネ防止になり、満足しています。構造的にアイランドキッチンが採用できるかどうか、難しい場合のプランも含めて確認・検討しましょう。